Лаконичное зеркало-шкаф «Нота» 75 с двумя распашными створками в своей простоте и элегантности обращается к классике минималистичного интерьера. Отсутствие лишних деталей и пышного декора делает этот функциональный объект эффектным интерьерным аксессуаром, прекрасным выбором для тех, кто предпочитает практичные, но милые вещи. За зеркальным полотном скрывается вместительный шкаф, который может служить удобной и безопасной зоной хранения не только для гигиенических, но и для лекарственных средств.
Мебель для ванной из МДФ
Мебель для ванной комнаты модерн
Мебель для ванной комнаты подвесная
Компактная мебель для ванной комнаты
Мебель для ванной комнаты Россия
Европейская мебель для ванной комнаты
Мебель для ванной белая
Черно белая мебель в ванную комнату
Навесные шкафы в ванную комнату с зеркалом
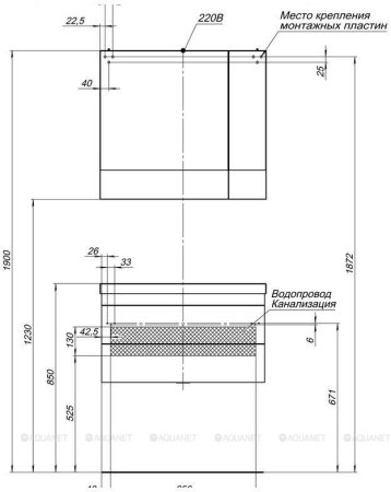
ВНИМАНИЕ! Светильник на фото является базовым для данной модели. Он не входит в стоимость. Его необходимо заказывать дополнительно. Также вы можете выбрать другой светильник из рекомендованных для этой модели.
Комплектация:
- Зеркало: Aquanet Нота, (камерино) 70, цвет белый, 2 распашные дверцы (165130)
Подборки с этим товаром:
Мебель для ванной 75 смМебель для ванной из МДФ
Мебель для ванной комнаты модерн
Мебель для ванной комнаты подвесная
Компактная мебель для ванной комнаты
Мебель для ванной комнаты Россия
Европейская мебель для ванной комнаты
Мебель для ванной белая
Черно белая мебель в ванную комнату
Навесные шкафы в ванную комнату с зеркалом




