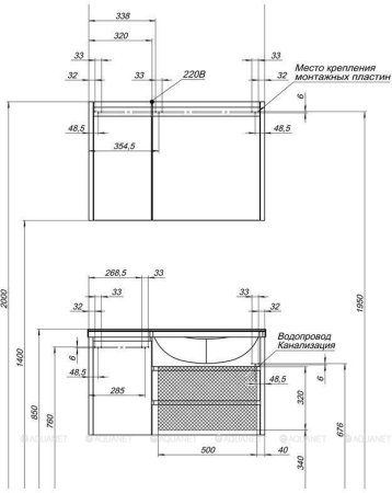
Широкое зеркало-шкаф с тремя отделениями – стильный и функциональный элемент интерьера, без которого трудно представить себе современную ванную комнату. Благодаря нейтральному дизайну, и спокойному цвету такое зеркало будет легко вписать в любую обстановку. Несмотря на небольшую глубину, шкафчик обладает весьма вместительной зоной для хранения – закрытые полки сохранят ваши вещи от пыли и влаги.
Комплектация:
- Зеркало: Aquanet Лайн 90 R, камерино со светильником, 2 распашные дверцы (164934)




