БрендAquanet
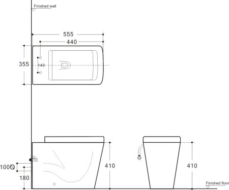
Высота чаши, см41 —
Материал сиденьяДюропласт
Направление выпускаГоризонтальное, в стену
Стилистика дизайнасовременный
Сиденье с микролифтом :есть, уже установлено
Формапрямоугольная
Система антивсплескДа
БезободковыйДа
Цветбелый
ТипПриставной унитаз
Цвет сиденьябелый
КоллекцияTavr
Функция бидеДа
МатериалФаянс
Угловая конструкцияНет
Страна брендаРоссия
Дополнительная информация :антигрязевое покрытие
Сиденье в комплектеда
Полочка в чашенет
Область применениябытовая
Ширина, см35.5 м
Высота, см43.5 м
Длина, см55.5 —




