Описание комплектации: Серый структ
Столешница под раковину Allen Brau Priority 80 1.31010.G-S.
Характеристики:
- Цвет: серый структ.
- Материал: керамогранит.
- Поверхность: структурированная.
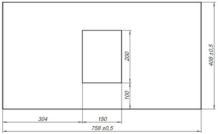
- Габариты (ШxВxГ): 758x10x408 мм.
- Отверстие для установки накладной раковины.
- Монтаж: на тумбу.
В комплекте поставки:
- Столешница под раковину.




