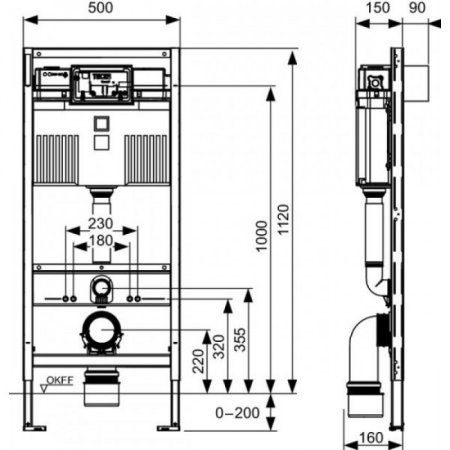
Застенный модуль TECEbase полностью готов к монтажу и установке подвесного унитаза. Все необходимое дополнительное оборудование входит в комплект TECEbase kit. Модуль комплектуется бачком для воды объемом 10 литров. Конструкция сливного клапана позволяет регулировать большой объем слива - от 4,5 до 9 литров. Объем малого смыва составляет 3 литра. Материал бачка и технология его изготовления обеспечивает ударопрочность и стойкость к низким температурам.
Доступ к содержимому бачка производится через отверстие для панели смыва, при этом все элементы внутренней конструкции легко извлекаются и обслуживаются.
Использование подвесного унитаза вместо стандартного напольного экономит пространство в туалетной комнате и значительно упрощает процесс уборки помещения.
Модуль TECEbase выдерживает нагрузку до 400 кг, что обусловлено конструкцией, надежностью используемых материалов и постоянным контролем качества.
КОМПЛЕКТАЦИЯ
Застенный модуль TECEbase.
Панель смыва (кнопка смыва) TECE now, цвет — белый.
Крепеж для монтажа модуля к стене.
Звукоизолирующая прокладка для унитаза.
Размер застенного модуля:
112 x 50 x 16




