Описание комплектации: с решеткой Harmony
Душевой лоток Azario AZ-CH 750 H.
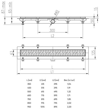
Характеристики:
- Цвет: хром.
- Материал решетки: нержавеющая сталь.
- Материал слива: полипропилен.
- Общая высота монтажа: 65-87 мм.
- Сток воды: 40 л/мин.
- Комбинированный сифон: гидрозатвор + сухой затвор.
- Вид решетки: перфорированная.
- Направление выпуска: горизонтальный.
- Монтаж: около стены (в пол).
- Сточная труба: 40 мм.
- Максимальная нагрузка до 300 кг.
В комплекте поставки:
- Душевой лоток.
- Самоклеящаяся гидроизоляционная фолия.
- Регулируемые опоры (ножки).
- Комплект крепления (нейлоновые дюбеля и шурупы).
- Решетка из нержавеющей стали.
- Пластиковый ключ для поднятия нержавеющей решетки.
- Монтажная инструкция по установке.




