Описание комплектации: профиль Хром стекло рифленое
Прямоугольный душевой уголок Belbagno Unique 115х90 UNIQUE-AH-2-100/115-75/90-P-Cr.
Душевой уголок серии Unique с двумя раздвижными дверцами и универсальной ориентацией станет прекрасным дополнением любой ванной комнаты. Превосходно будет сочетаться в интерьере современного стиля.
Характеристики:
- Цвет профиля: хром.
- Материал профиля: анодированный алюминий, стандарт DIN17611 2007.
- Материал полотна: закаленное стекло, стандарт EN12150-1:2000.
- Исполнение стекла: рифленое.
- Толщина стекла: 5 мм.
- Тип открывания двери: раздвижная.
- Размеры (ШхВхД): 115x190х90 см.
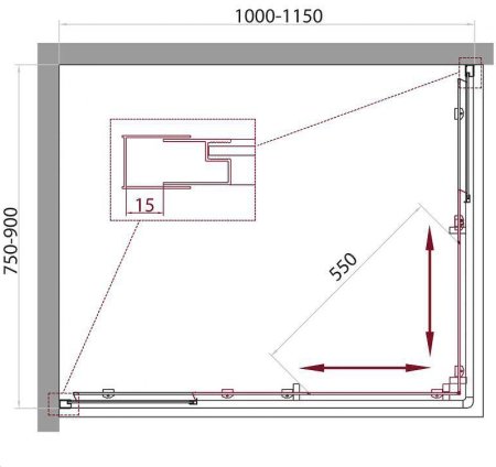
- Габариты с регулировками: 100-115x75-90 см.
- Ширина входа: 550 мм.
- Высота: 1900 мм.
- Форма: прямоугольная.
- Универсальная ориентация.
- Крепления полотна: двойные подшипниковые ролики.
- Количество дверей: 2.
- Монтаж: пристенный в угол, осуществляется либо на поддон, либо на пол, оборудованный для душа.
В комплекте поставки: душевой уголок (стекла, профиль, фурнитура).




