Описание комплектации: профиль Хром стекло рифленое
Душевой уголок BelBagno Uno 80х80 UNO-195-A-2-80-P-Cr.
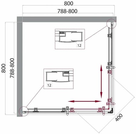
Характеристики:
- Цвет профиля: хром.
- Материал профиля: анодированный алюминий, DIN17611 2007.
- Материал полотна двери: закаленное стекло, стандарт EN12150-1:2000.
- Исполнение полотна двери: рифленое стекло толщиной 5 мм.
- Размеры (ШхВхД): 800x1950х800 мм.
- Регулировка ширины предусмотрена за счет боковых профилей, что позволяет без проблем установить изделие даже при кривизне стен.
- Количество секций двери: 2.
- Конструкция дверей: раздвижная.
- Форма: квадратная.
- Ориентация: универсальная.
- Цвет фурнитуры: хром.
- Монтаж: пристенный в угол.
- Установка: на поддон, на пол.
- Двойные подшипниковые ролики.
- Вход: 400 мм.
В комплекте поставки:
- Душевой уголок.




