Описание комплектации: профиль Черный матовый стекло прозрачное
Душевой уголок BelBagno Uno 120х90 UNO-195-AH-2-120/90-C-NERO.
Характеристики:
- Цвет профиля: черный матовый.
- Материал профиля: анодированный алюминий, стандарт DIN17611 2007.
- Материал полотна двери: закаленное стекло, стандарт EN12150-1:2000.
- Исполнение полотна двери: прозрачное стекло толщиной 5 мм.
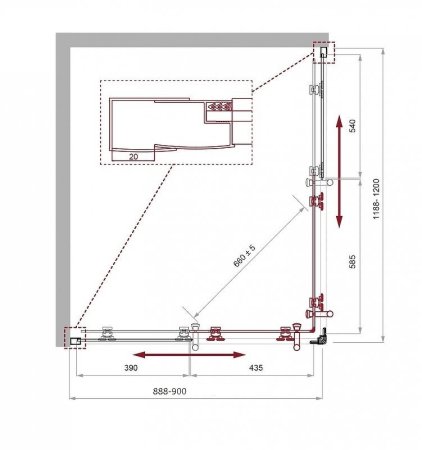
- Размеры с диапазоном регулировок (ШхД): 1188-1200х885-900 мм.
- Высота: 1950 мм.
- Ширина входа: 660 мм.
- Конструкция двери: раздвижная.
- Количество секций двери: 2.
- Форма: прямоугольная.
- Регулировка ширины предусмотрена за счет боковых профилей, что позволяет без проблем установить изделие даже при кривизне стен.
- Крепления полотна двери: двойные подшипниковые ролики.
- Монтаж: пристенный в угол.
- Установка: на поддон, на пол.
В комплекте поставки:
- Душевой уголок.




