Описание комплектации: профиль Хром стекло прозрачное
Душевая дверь BelBagno Uno 60 UNO-B-1-60-C-Cr.
Характеристики:
- Цвет профиля: хром.
- Материал профиля: анодированный алюминий.
- Витраж: прозрачное закаленное стекло толщиной 5 мм.
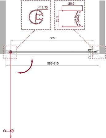
- Габариты (ШхВ): 615х1850 мм.
- Регулировка ширины предусмотрена за счет боковых профилей, что позволяет без проблем установить изделие даже при кривизне стен.
- Ширина входа: 50.5 см.
- Конструкция двери: распашная.
- Количество секций двери: 1.
- Ориентация: универсальная.
- Монтаж: в нишу, на поддон или непосредственно на пол.
В комплекте поставки: душевая дверь: стекла с фурнитурой и профилями.




