Описание комплектации: профиль Хром стекло прозрачное
Душевой уголок BelBagno Uno 120х90 UNO-195-AH-2-120/90-C-Cr.
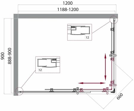
Характеристики:
- Цвет профиля: хром.
- Габариты (ШхВхД): 120х195х90 см.
- Габариты с учетом регулировки (ШхВхД): 1188-1200х1950х888-900 мм.
- Форма: прямоугольная.
- Количество секций двери: 2.
- Конструкция двери: раздвижная.
- Толщина полотна двери: 5 мм.
- Материал полотна двери: прозрачное закаленное стекло.
- Материал профиля: анодированный алюминий, стандарт DIN17611 2007.
- Крепления полотна двери: двойные подшипниковые ролики.
- Ориентация: универсальная.
- Монтаж: пристенный в угол.
- Возможная установка: на поддон, на пол.
В комплекте поставки: душевой уголок (профиль, стекла).




