Описание комплектации: профиль Хром стекло прозрачное
Душевой уголок BelBagno Etna 80х80 ETNA-A-12-80-C-Cr.
Характеристики:
- Цвет профиля: хром.
- Материал профиля: анодированный алюминий.
- Материал полотна двери: закаленное стекло.
- Исполнение полотна двери: прозрачное стекло толщиной 6 мм.
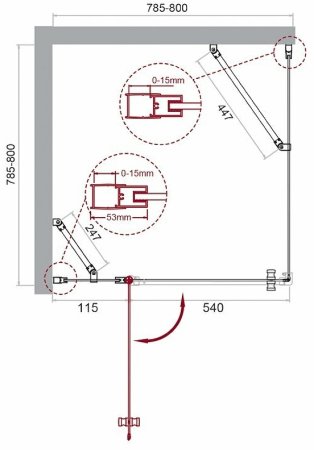
- Размеры (ШхВхД): 800x1950х800 мм.
- Регулировка ширины предусмотрена за счет боковых профилей, что позволяет без проблем установить изделие даже при кривизне стен.
- Количество секций двери: 1.
- Конструкция дверей: распашная.
- Форма: квадратная.
- Ориентация: универсальная.
- Цвет фурнитуры: хром.
- Монтаж: пристенный в угол.
- Установка: на поддон, на пол.
- Оснащение: цилиндрическая петля с подъемным механизмом.
В комплекте поставки:
- Душевой уголок.




